SOLD OUT区分マンション
ソフトタウン晴海(1部屋)
交通都営大江戸線「勝どき」駅
専有面積70.24m2(21.25坪)
価格-
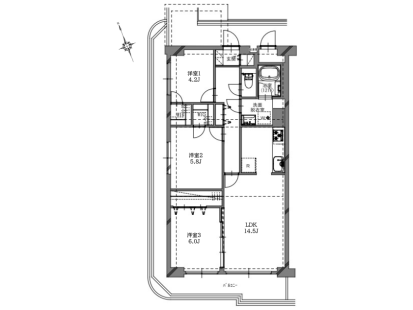
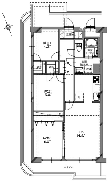
Outline物件概要
- 物件名
- ソフトタウン晴海
- 交通
- 都営大江戸線「勝どき」駅
新交通ゆりかもめ「新豊洲」駅 - 間取り
- 3LDK
- 専有面積
- 70.24m2
- 築年月
- 1983年8月
- 階数/階建
- 11階建
- 向き
- 南西
- 現況
- 空室
- 駐車場
- 月額30,000円
- 建物構造
- 鉄骨鉄筋コンクリート造
- 総戸数
- 234戸
- 管理会社
- 株式会社長谷工コミュニティ
- 管理形態
- 全部委託管理
- 管理員の勤務形態
- 日勤管理
- 分譲会社
- 株式会社日交開発・鈴江陸運株式会社
- 施工会社
- 株式会社長谷川工務店
- 引渡時期
- 相談
- 取引態様
- 売主
- ※図面と現況に相違がある場合は現況優先にてご了承願います。
- ※(税込)表示価格には建物価格の10%にあたる消費税が含まれております。

